A10

Unit Price ~ 1.365.000 S.R

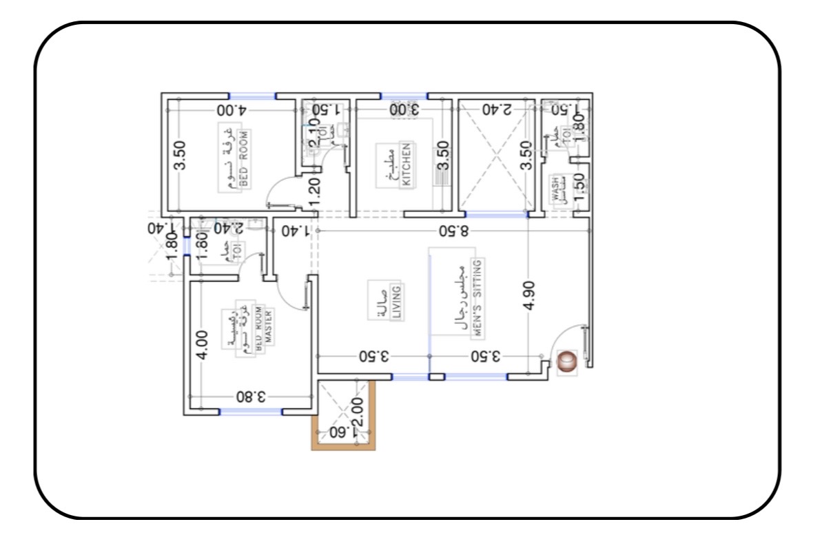
Area 133.04m
Bedrooms 3
Bathrooms 2
Three-bedroom apartment with a living room, featuring a master bedroom with an en-suite bathroom, a bathroom serving the other two bedrooms, a guest bathroom, a kitchen, and a private rooftop area of 107.59 square meters.
Register Interest
Unit Image Unit Image Unit Image Unit Image Unit Image Unit Image Unit Image Unit Image Unit Image Unit Image Unit Image Unit Image Unit Image Unit Image Unit Image Unit Image Unit Image Unit Image Unit Image Unit Image Unit Image Unit Image Unit Image Unit Image Unit Image Unit Image Unit Image Unit Image
Unit Image Unit Image Unit Image Unit Image Unit Image Unit Image Unit Image Unit Image Unit Image Unit Image Unit Image Unit Image Unit Image Unit Image Unit Image Unit Image Unit Image Unit Image Unit Image Unit Image Unit Image Unit Image Unit Image Unit Image Unit Image Unit Image Unit Image Unit Image